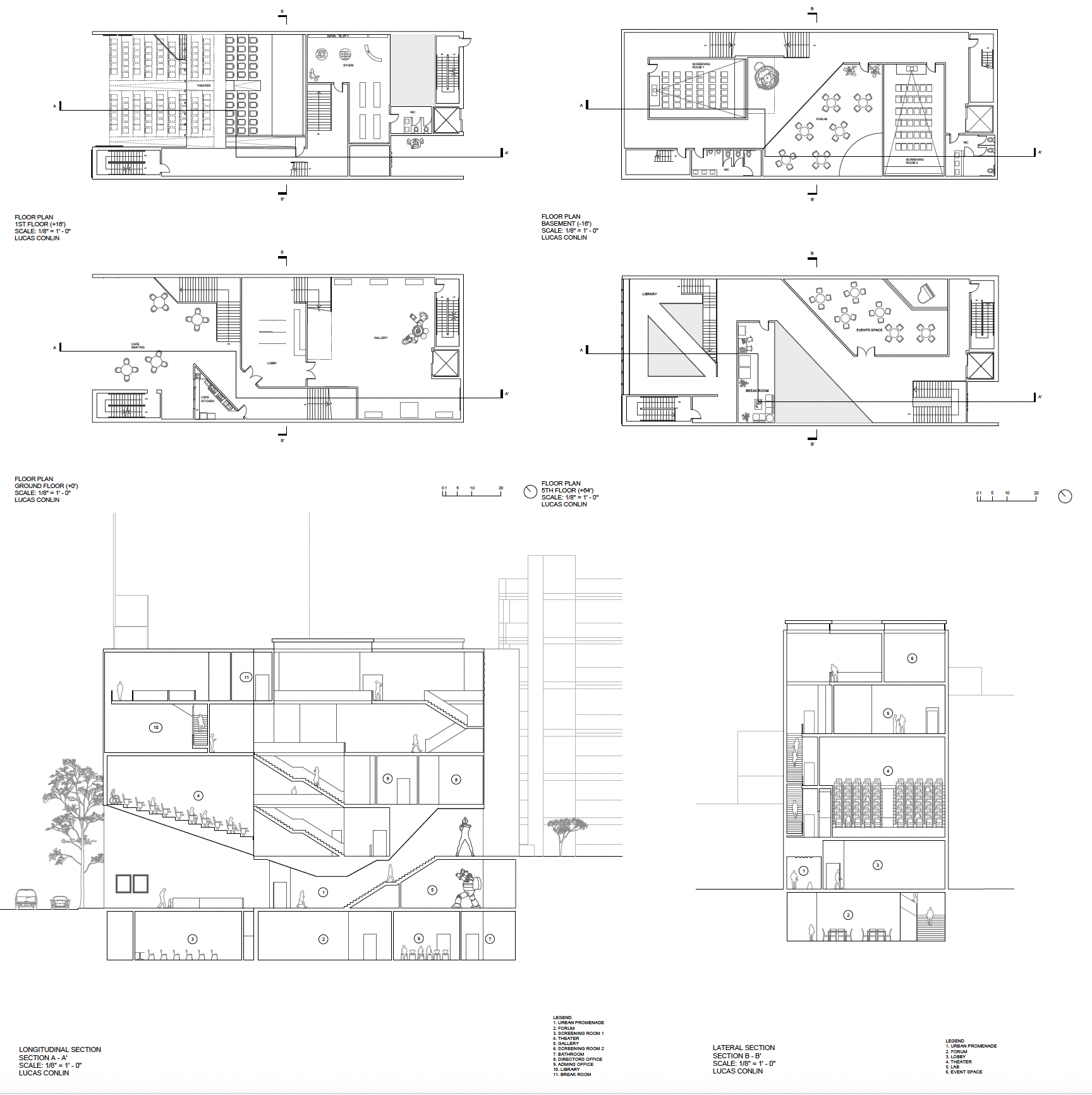
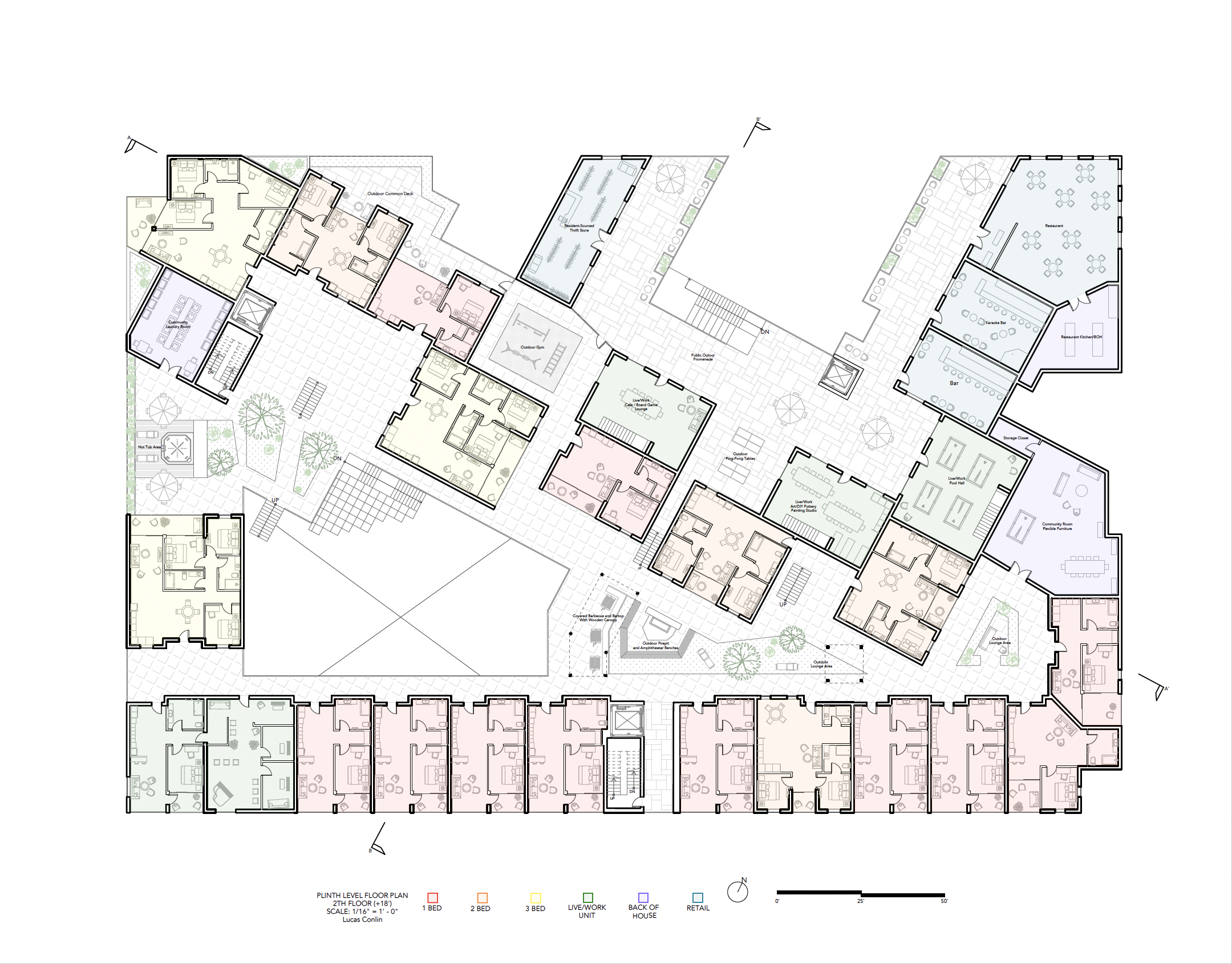
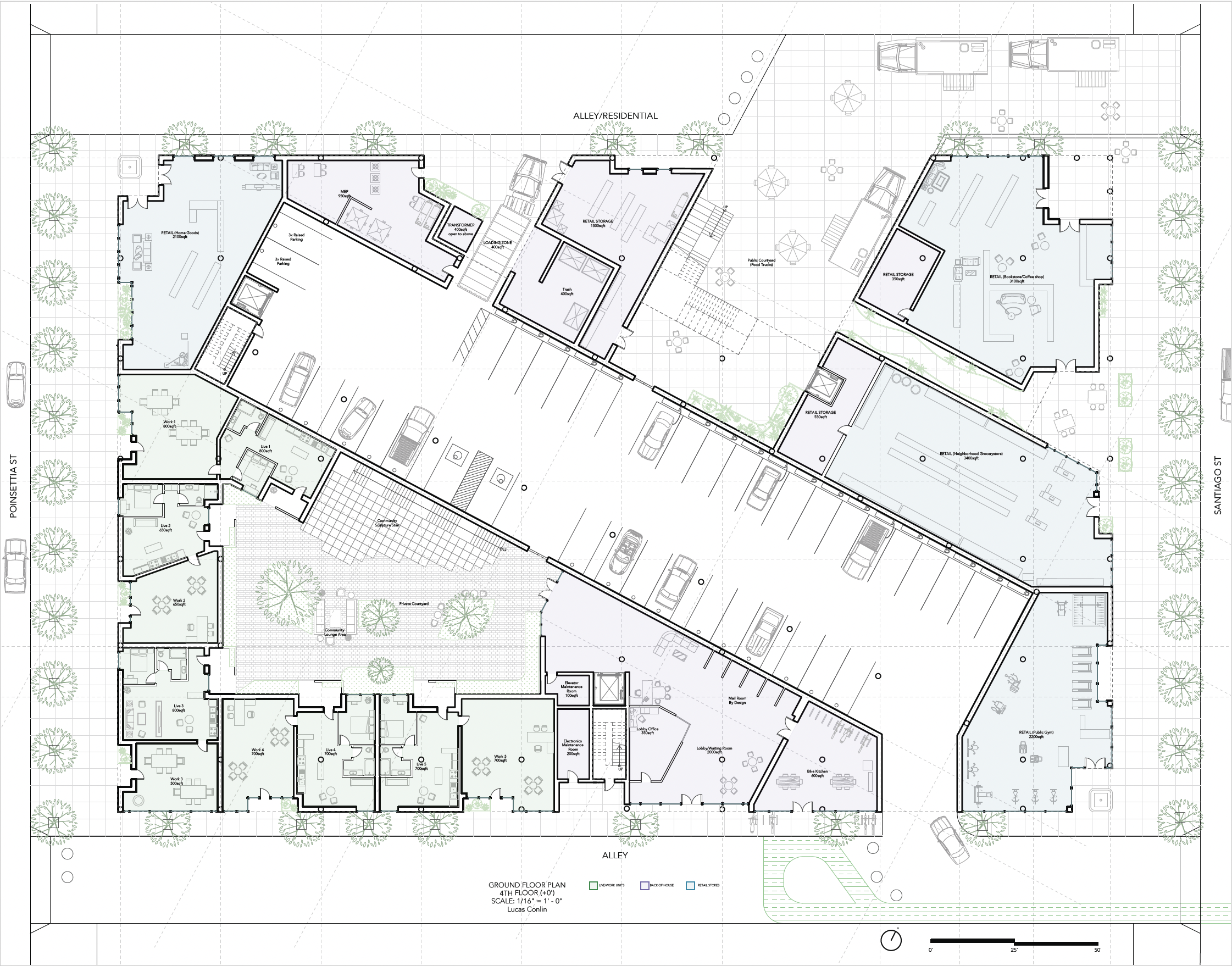
Designs compiled from 2024 - 2025My most recent projects consist of education, cultural/civic, construction documentation, public infrastructure, and live/work.
Check them out!
Designs compiled from 2024 - 2025Check them out!